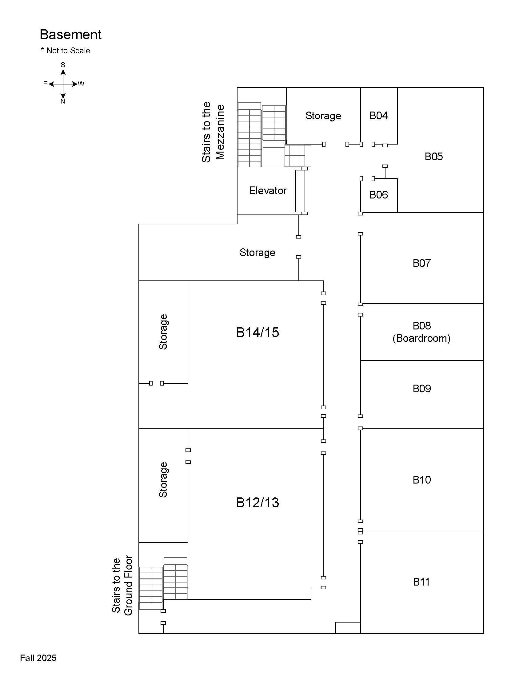
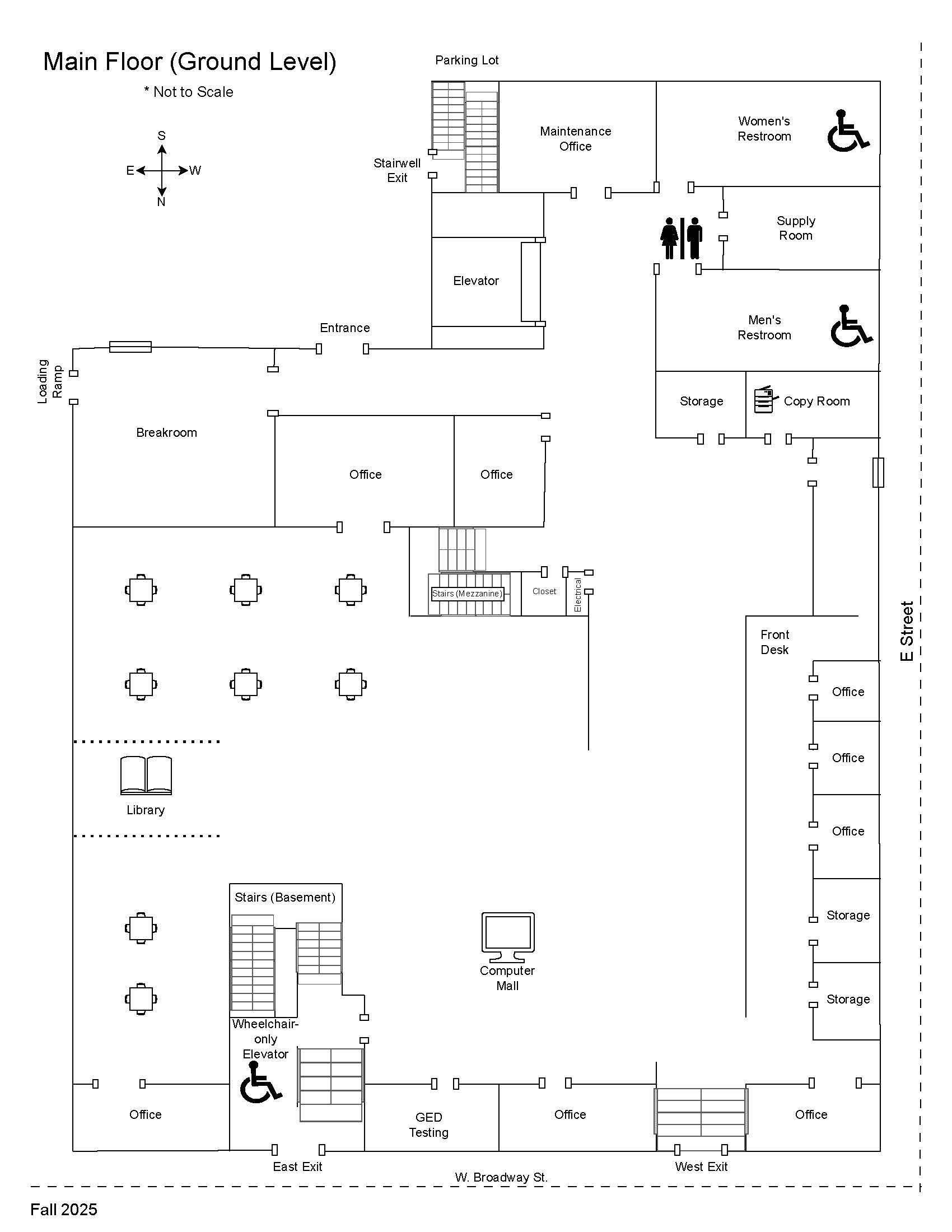
Campus Maps
Main Campus
Classroom Building

College Services Building

Fine & Performing Arts Center

Physical Education Center

Technology Building

Needles Educational Center

PUBLIC NOTICE - VACANCY ON THE PALO VERDE COMMUNITY COLLEGE DISTRICT BOARD OF TRUSTEES - More Information
Close Alert




